Haus am Main

> EG, ein animierter Rundgang> OG / DG, ein animierter Rundgang
   
      Im Detail:
  > EG
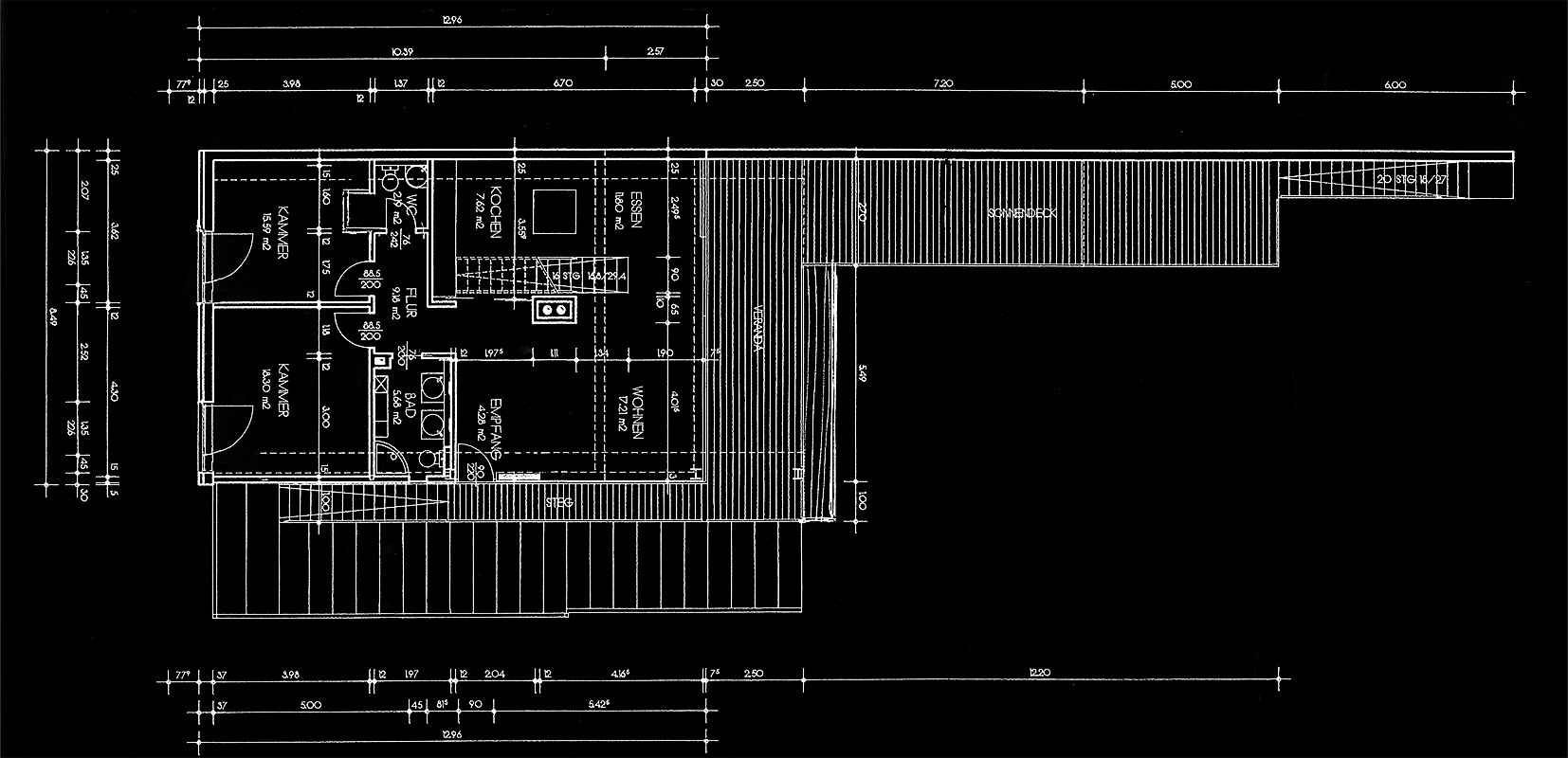
  OG
  > DG
  > Lage
  > mehr Infos
  > Kaufpreis
  > Kontakt
 < Start
Grundriss OG